О программе
Видео
|
 |
ArCon Eleco Small Business — специальное издание для малого и среднего бизнеса, а также требовательных пользователейArCon Eleco Small Business
Специальное издание для малого и среднего бизнеса, а также требовательных пользователей
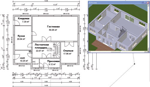
- Планирование и визуализация идейного эскиза для трехмерной презентации
- Комфортное и простое проектирование
- Убедительные результаты визуализации в самое короткое время
Все, кто так или иначе знаком хотя бы с одной из версий Arcon (да и новички), могут так же быстро разобраться с работой в ArCon Eleco Small Business: интерфейс столь же прост как и Arcon Home 2, макросы расширены как и в предыдущих версиях, но при этом оставлены только самые необходимые. Нет, функции не ограничены, дело в том, что некоторые макросы прописаны уже непосредственно в функциях, а потому и не выведены в отдельные опции.
Многие могут его сравнить с версией Home. Но на самом деле здесь функции достаточно расширены, по сравнению с «базовой» версией, например:
- Введен Редактор плит
- Ассистент проектов
- Расширенный перечень макросов
- Возможность интегрировать 3D изображение в формат o2c
При сравнении с более поздними версиями Arcon можно обратить внимание на явные преимущества ArCon Eleco Small Business над другими релизами:
- Расширена библиотека объектов, текстур и материалов.
- В библиотеке прописана папка «Собственные», куда закгружаются объекты, текстуры, и материалы пользователем
- Прописана опция Rendering - индивидуальный световой расчет для каждого помещения
- Импортные возможности из других программ планирования: файлы форматов DXF, HPG, PLT и 3DS
- Экспортные возможности произведенных с ArCon проектов в другие программы планирования: файлы форматов DXF, 3 D DXF, VRML, 3DS, ArCon object, O2C, MBA, ArCon Render студия, HPGL, EWM и PCF
- Отдельные проекты можно записывать как графические данные
- Информация помещения после нормы германского промышленного стандарта, важно для объявлений
- Соответствующие архитектуре изображения
- Они имеют возможность конструировать лестницы в древесине или бетоне; также винтовые лестницы возможны, так же грузовые платформы(подъезды)
- В плитах перекрытий можно вырезать отверстия для лестниц
- Моделирование земельного участка: область территории, пункты высот, различные грузовые платформы территории
- Полное проставление размеров
- Совместимость с Windows® Vista®.
Как и предыдущие версии, аудитория ArCon Eleco Small Business – все те, кто так или иначе связан со строительством и дизайном. А как же может быть иначе? ArCon представляет возможность визуализировать все то, что так долго «хранилось» в Вашем воображении, все то, что так долго не могли налядно и «на пальцах» объяснить заказчики и застройщики.
Другими словами, можно сказать, что ArCon Eleco Small Business является воплощением всех самых необходимых функций для тех, кто не желает останавливаться на достигнутом и четко определяет свои требования к программному обеспечению.
Купить программу ArCon Eleco Small Business
Просмотров: 12319 с 02.02.2009
|