Раскраска помещений на планеНовая функция «Раскраска помещений», появившаяся в ArCon Eleco +2011, позволяет быстро и просто раскрасить чертежи и планы. Данную функцию вы найдете в режиме конструирования в меню «Опции» -> «Раскраска помещений».

После запуска данной функции откроется диалоговое окно, в котором вы можете задавать необходимые установки и переносить их в проект.

В программу по умолчанию уже заложены 2 варианта раскраски «Для документов» и «Стандарт». В варианте «Для документов» раскраска и штриховка отсутствуют, все помещения на плане показаны белым цветом.

Если вам нужно загрузить дополнительные варианты, кликните по кнопке «Добавить» и задайте название вашего варианта раскраски в появившемся окне.
В левой части окна даны стандартные обозначения помещений, заданные в программе по умолчанию. Вы можете изменить их с помощью меню «Опции» -> «Стандартные обозначения помещений».
Выберите помещение. Справа вы можете выбрать цвет помещения, а также его прозрачность. Значения прозрачности в 100% означает, цвет будет абсолютно прозрачным, т.е. помещение будет закрашено белым цветом. При изменении прозрачности вы увидите, что цвет помещения в соответствующем поле становится более или менее прозрачным.

В поле «Штриховка» вы можете задать вид штриховки помещения. Также вы можете комбинировать раскраску помещения и прозрачность со штриховкой. Чтобы сохранить заданные вами установки нажмите ОК.

Затем нажмите Да и ОК в следующих двух появившихся диалоговых окнах:


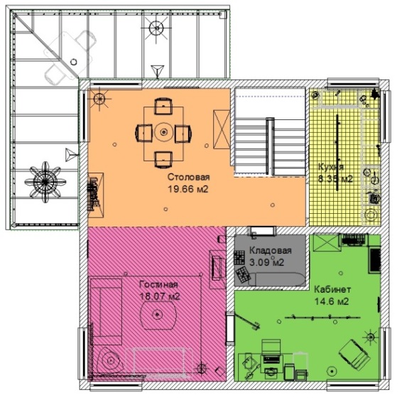
После этого помещения на плане раскрасятся в соответствие с заданными установками.

Применить раскраску помещений
С помощью функции «Применить раскраску помещений» в меню «Опции» вы можете просто и быстро перенести заданную раскраску на любое помещение.
Из существующих вариантов раскраски выберите нужный вам.

Не закрывая диалоговое окно, кликните по помещениям, на которые вы хотите перенести данную раскраску.

Также вы можете раскрасить помещения вручную, кликнув по ним два раза левой кнопкой мыши и задав в открывшемся окне «Данные помещения» в поле «2D-изображение» нужные вам параметры раскраски помещения.
При написании данной статьи были использованы материалы с сайта www.arcon-cad.at
Купить программу ArCon Eleco +2016 или ArCon Eleco +2014
Просмотров: 6346 с 15.10.2012
|